Small Attic Loft Apartment In Prague

Attic-Loft-Apartment-Prague_1 Attic-Loft-Apartment-Prague_2 Attic-Loft-Apartment-Prague_3

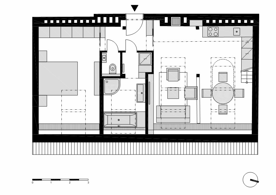
The design of this modern loft conversion located in Prague, Czech Republic uses natural materials such as stone, brick and wood to enhance the flat and angular surfaces. Designed by architect Dalibor Hlavacek, the two-storey attic loft makes good use of limited floor space.

Attic-Loft-Apartment-Prague_4 Attic-Loft-Apartment-Prague_5 Attic-Loft-Apartment-Prague_6 Attic-Loft-Apartment-Prague_7 Attic-Loft-Apartment-Prague_8 Attic-Loft-Apartment-Prague_9

The living room, kitchen, bedroom and bathroom are on the lower floor. The upper gallery, accessible via staircase and a steel footbridge, creates an intimate space for the study, which can also be used as a second bedroom.

Attic-Loft-Apartment-Prague_11 Attic-Loft-Apartment-Prague_12 Attic-Loft-Apartment-Prague_13

Discover more from The Stark Contrast Blog

Subscribe now to keep reading and get access to the full archive.

Continue reading