Edge House by STARH Stanislavov Architects

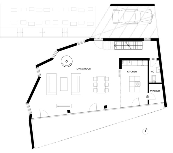
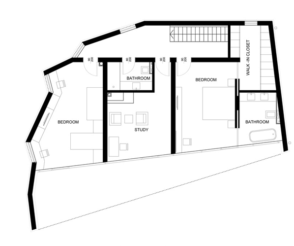
Interesting concept house “Edge House”  was created by Bulgarian firm STARH Stanislavov Architects. It’s a single family dwelling located in the densely vegetated suburbia of Varna, next to the sea. The residence’s peculiar plan, reminiscent of a conch shell, ends in a southern-facing full-height curtain wall orienting all programmatic elements towards the sea.

Discover more from The Stark Contrast Blog

Subscribe now to keep reading and get access to the full archive.

Continue reading